О компании
 
Информация
 
Телефон:
Заказать звонок

AL РЕХАУ RESOLUT

AL cистемы и продукты РЕХАУ для производителей окон

ИЛИ

Алюминиевые окна и двери РЕХАУ на заказ от официального партнера

Оставить заявку

Главная — Все системы — Алюминиевые окна и двери РЕХАУ 

Алюминиевые системы РЕХАУ RESOLUT — окна, двери, порталы

Алюминиевые оконные и дверные системы РЕХАУ RESOLUT это продукт от компании с мировым именем, в котором продумана каждая деталь и операция. RESOLUT для тех, кто выбирает максимум из возможного, кто покупает эффективность, надежность и комфорт.

Алюминиевые окна и двери РЕХАУ RESOLUT POINT (64)
Окна RESOLUT POINT 64

Базовая оконная система РЕХАУ RESOLUT POINT 64 мм. Интеграция в AL фасад.

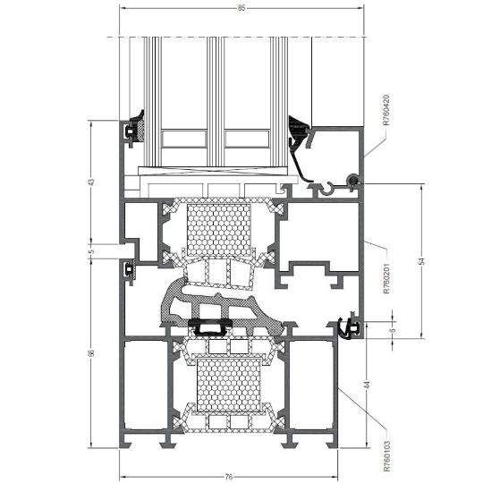
Алюминиевые окна и двери РЕХАУ RESOLUT RANGE 76
Окна RESOLUT RANGE 76

Основная оконная система РЕХАУ RESOLUT RANGE 76 мм. Интеграция в AL фасад.

Алюминиевый HS портал РЕХАУ RESOLUT MOVE
HS портал RESOLUT MOVE

Уникальная подъемно-сдвижная дверная портальная система REHAU RESOLUT MOVE 203 мм/86 мм. Класс А.

Алюминиевые двери РЕХАУ RESOLUT POINT 64 мм
Двери RESOLUT 64

Базовые алюминиевые двери РЕХАУ RESOLUT 64 мм наружного и внутреннего открывания. Порог 14 мм.

Алюминиевые двери РЕХАУ RESOLUT RANGE 76 мм
Двери RESOLUT 76

Основные алюминиевые двери РЕХАУ RESOLUT 76 мм наружного и внутреннего открывания. Порог 14 мм.

Алюминиевая фасадная система РЕХАУ RESOLUT
Фасадная система SPACE RS48

Стоечно-ригельная алюминиевая фасадная система РЕХАУ RESOLUT SPACE RS48